ЖК Гринвуд. Квартира с панорамой моря ID 54142
Добавитьв избранное
135 000 USD
1 875 USD / м. кв.
комиссионные 3 %
Обновлено: 18.05.26
Одесская обл., Одесса, Приморский р-н., Французский бульвар, Французский/Шевченко
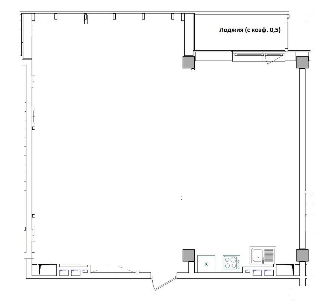
Комнат:
2
Этаж:
13
Этажность:
18
S общ. :
72 м2
Тип дома:
дому до 10-ти лет
-F-35624-88
Французский бульвар - самый востребованный на сегодняшний день жилой комплекс GreenWood. Лучшее ценовое предложение, продажа без дополнительных затрат ! Вид на море именно из этой квартиры - Вы будете иметь возможность каждое утро встречать восход солнца , c чашечкой кофе на собственном балконе! Квартира 72 кв.м. на 13 этаже. Планируется в 1 или 2 спальни и кухню - студию. Прекрасный вид на море из окон и с балкона. Дом заселен, все функционирует, охрана, автономия, запас воды на 50 тонн, генератор. В доме шикарный СПА - центр, летом открывается собственный бассейн! Отличный вариант как для собственного проживания, так и для бизнеса!
Анна Нагорняк офис-менеджер
Компания Стандарт. Купить квартиру в новых домах и спецпроектах Приморского района Одессы
риелтор
