Продаётся действующее СТО на Атамана Головатого ID 54033
Добавитьв избранное
380 000 USD
комиссионные 5 %
Обновлено: 08.05.26
Одесская обл., Одесса, Пересыпский р-н., Атамана Головатого улица, Пересыпь
S помещения:
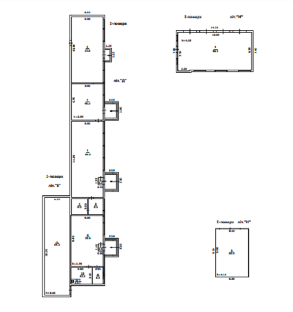
530 м2
S участка:
12 сот.
Тип коммерческой недвижимости:
Автосервис. АЗС. Автомойка
1F-35493-401
Полностью укомплектованная станция технического обслуживания 530 кв.м на 4 бокса. СТО оснащено всем необходимым для работы: Подъемники, стенд развал-схождения, шиномонтажное оборудование и другое профессиональное оборудование На территории также расположен магазин с развитой инфраструктурой: торговые залы 75 кв.м и 57 кв.м складские помещения 40 кв.м и 86 кв.м офисные помещения Электрическая мощность — 50 кВт, что позволяет без ограничений вести бизнес. Преимущества: Хорошая, проездная локация Рядом АЗС и автомойка
Анна Нагорняк офис-менеджер
Компания Стандарт. Коммерческая недвижимость в Одессе - снять, купить
риелтор
