Дом на Долгой/Львовская, 5,5 соток, готовый дизайн-проект ID 43399
Добавитьв избранное
200 000 USD
комиссионные 5 %
Обновлено: 03.04.26
Одесская обл., Одесса, Киевский р-н., Фонтан
Комнат:
4
S дома :
343 м2
S участка:
5.2 сот.
-F-26754-6
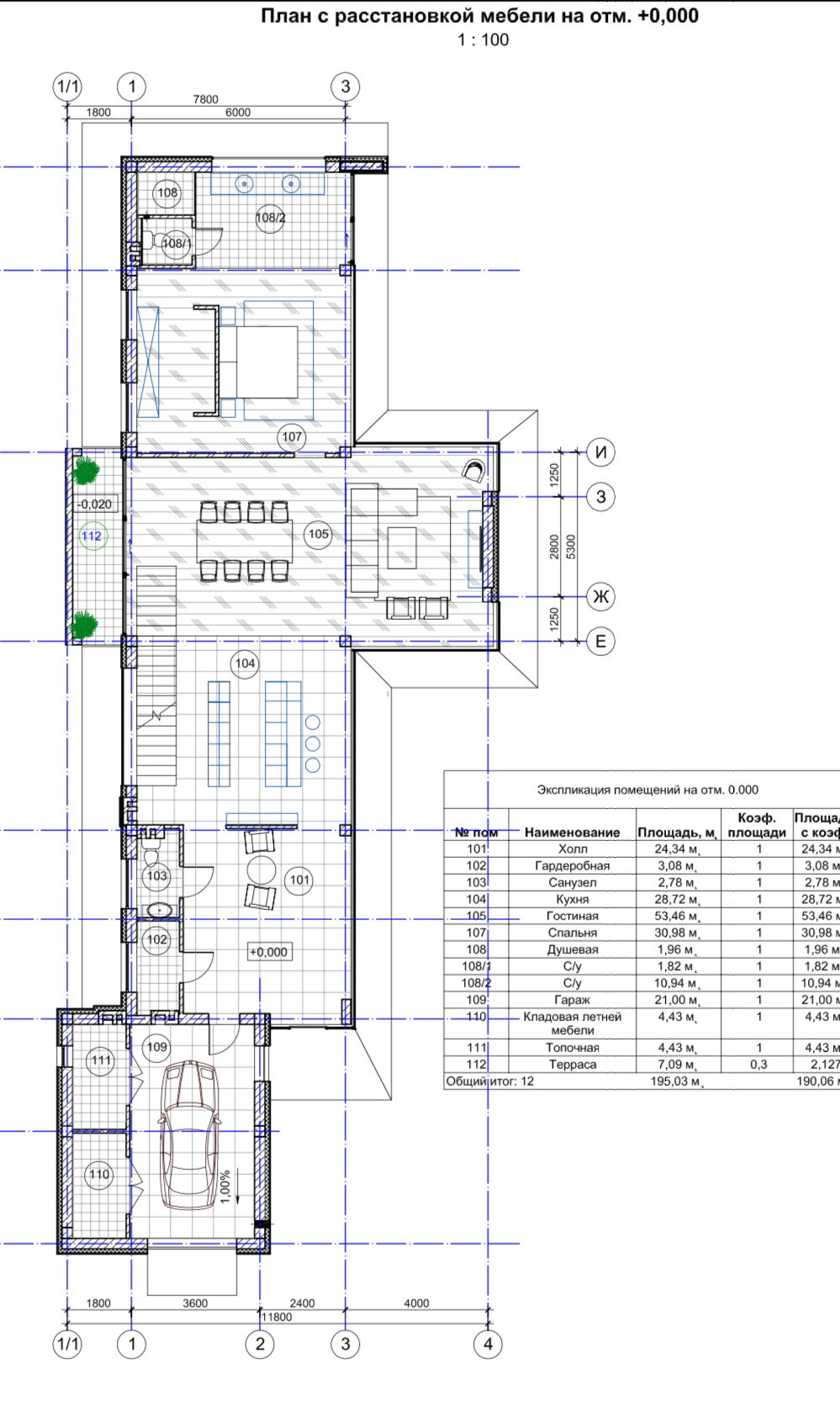
Двухэтажный дом на ул. Долгая, район Львовской — капитальное строение с готовым дизайн-проектом. Участок с глубоким фасадом позволяет реализовать комфортную приватную территорию. Участок 5,5 соток. Общая площадь 343 м², два этажа. 1 этаж: 190 м²: просторная гостиная 53 м², кухня, санузел. 2 этаж: 152 м²: 4 спальни, 4 санузла, 3 гардеробные. Предусмотрены 3 террасы и гараж. Удобная геометрия участка, глубокий фасад. Незавершенное строение: стены из газобетона, перекрытия — железобетон. Разработан дизайн-проект, что ускоряет этап реализации и позволяет точно рассчитать бюджет завершения. Район ул. Долгая / Львовская. Частный сектор с удобной транспортной доступностью. Рядом Фонтан, магазины, школы, выезд к морю и в центр города.
Анна Нагорняк Компания Стандарт
Купить квартиру, дом, участок в Одессе
риелтор
